• A propos
  • Nos phases d’intervention
  • Nos missions
  • Nos réalisations
  • Formation
  • Contact
  • Suivre
  • Suivre
01.PIC 3D

01.PIC 3D

par Tom_adm | Jan 16, 2023

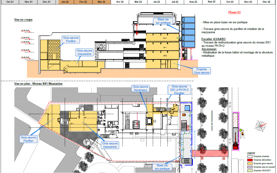
03. Phasage 2D

03. Phasage 2D

par Tom_adm | Jan 16, 2023

02. Phasage 2D

02. Phasage 2D

par Tom_adm | Jan 16, 2023

01. Phasage 3D

01. Phasage 3D

par Tom_adm | Jan 16, 2023

Entrées suivantes »
© Bumeo 2026 | Création du site par Tom Campion

Mentions légales